
用途与简介
BS型电动推杆旋转式滗水器,广泛适用于城市污水及造纸、啤洒、制革、制药等各种工业废水处理,用于排水阶段将已经处理的上清液自表面滗出,是SBR工艺的关键设备。
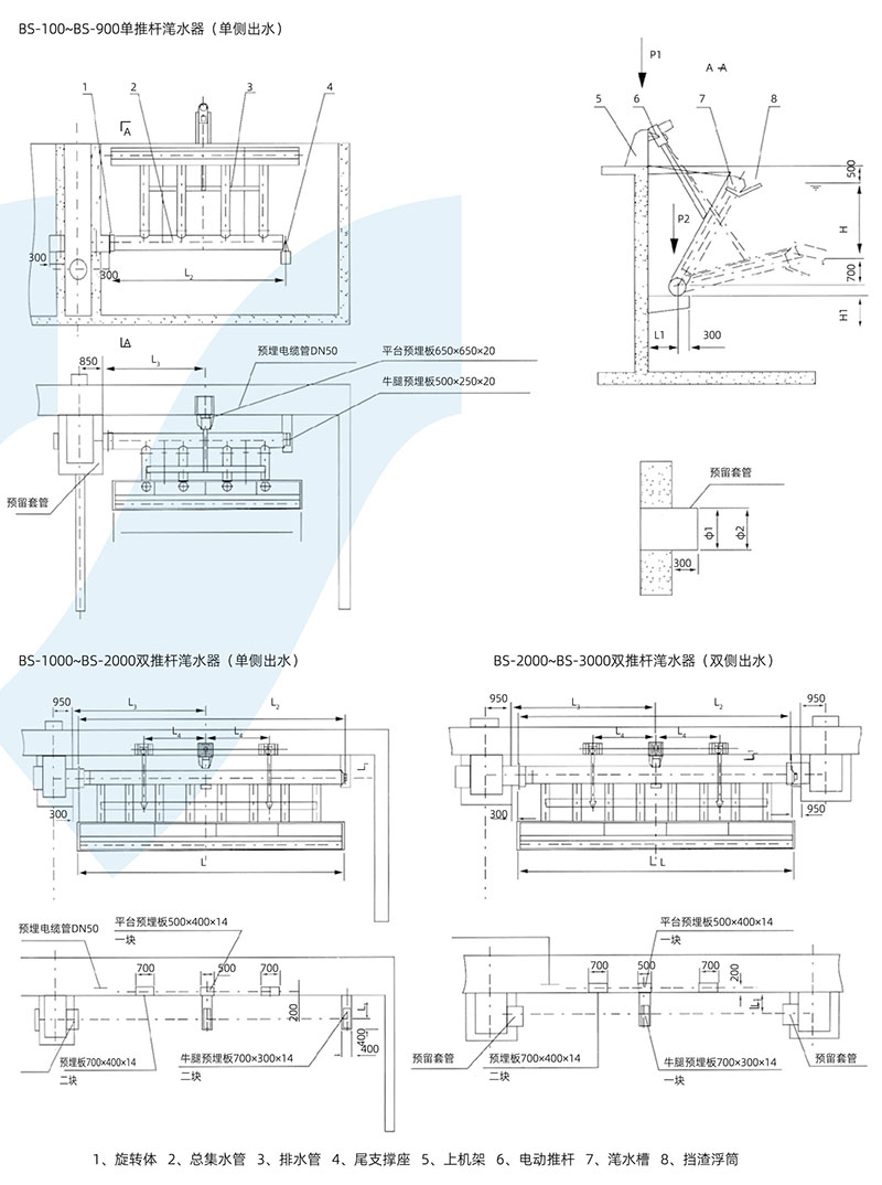
主要结构和工作原理
该设备采用旋转式、电动推杆式,安装于反应池或沉淀池内,工作时由驱动装置驱动推杆,使滗水器以一定速度渐渐下降至水面(在规定的行程范围内),使堰口浸入水面下,上清液从堰口流入,经集水支管汇集至总管后排出,停止时同样由推杆将滗水器提起,使堰口抬离水面以上,从而完成一个滗水的过程。
主要特点
1、设备结构紧凑,运行平稳,整体结构安装方便、运行成本低;
2、对水质、水量的变化有较强的适应性,且滗水深度可达3.0m;
3、处理量Q< 1000m3/h,采用单推杆,Q≥1000m3/h,则采用双推杆;
4、在滗水堰口出外设有浮渣挡板,以确保在设备运行时堰口上的液面不起波动,保证出水水质达到较佳;
5、设备变频调速和PL C自动及远程控制,运行管理方便。
型号说明

型号及主要技术参数

外形示意图



13812227136 