RSG 渠箱螺旋式机械格栅是城市小型污水处理厂和工业废水处理过程中将水中漂浮物质、沉降物质及悬浮物质分离取出的理想设备,广泛用于城市小型生活污水厂、工业废水处理工程的除污、捞渣及压榨脱水。用于城市小型污水处理厂的除污、捞渣及压榨脱水;工业废水处理工程的除污、捞渣及压榨脱水。
结构和工作原理
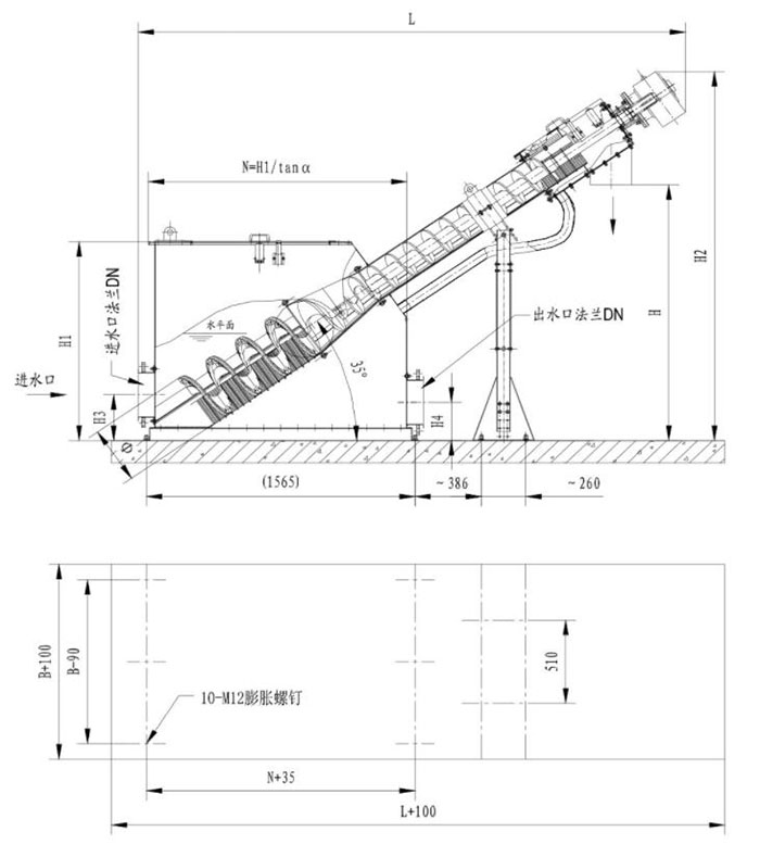
RSG 渠箱螺旋式机械格栅主要由弧形格栅、螺旋提升压榨机和渠箱组成。渠箱的作用是联接进出水口和支承整台格栅机,弧形格栅安装在渠箱内,水流通过渠箱时栅渣被截留在渠箱内,渠箱内的螺旋提升压榨机定期将弧形格栅截留的栅渣提升并压榨,最后从排渣口排出。
型号说明

主要特点
1、渠箱与污水输送管路直联,无需建造钢筋混凝土沟渠;
2、变径螺旋结构可使栅渣在提升过程中压榨脱水,减少了垃圾的后污染;
3、渠箱内的水流与独特的捞渣结构相互作用下具有自清能力,防止格栅堵塞;
4、带水位差控制和定时控制,保证格栅机全自动运行,无需专人看管。
安装示意图




13771381294 